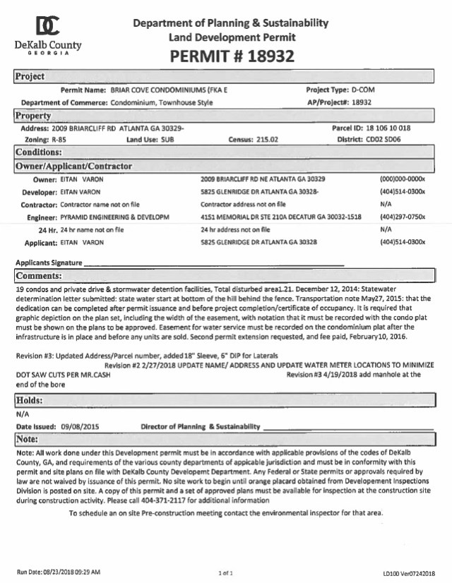
See attached permit. Update: We got the signed copy as well even though this version is unsigned.

Residents of Dekalb County, Georgia for a Healthy Safe Atlanta
See attached permit. Update: We got the signed copy as well even though this version is unsigned.
